
House 806 North 4th Street
Fairfield, Iowa 52556
Om Improvement for TM House for
Invincible America Course Participants
Tom Prior - Garage steel reinforcement, sump pump
Pilcher - concrete
PilcherConst@gmail.com
641-472-4363
Bix Construction - tunnel
Brian Horsefield
Bob Pagenkopf - plumber
Roto Rooter - Ottumwa
Phil Excavator - 641-919-3640
Trevor Drish Construction - 641-814-6950
Chet Vogt - 641-919-9679 CrossIrons@__
Tim Murphy - Painting and fixing
Bert Bell - Digital lock, front sidewalk
Peter Roessler - paint steps, basement ceiling
Scott Thompson - lawn care
Fired:
Mickey E lston
(never showed up after paid) - tunnel repair, steps, excavating, concrete work
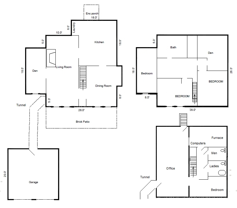
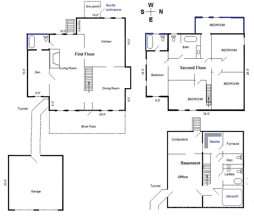
TO DO
| # | Improvement | Money | Notes (left brain) |
Graphic (right brain) |
| 0 | Replace clay
sewer pipe with PVC
|
$13925 Estimates |
MidWestOne Bank AHEAD funding $12000 approved |
|
| 1 | Ozone machine |
![]() |
||
| 3 |
New Roof Tiles85% done Organic shingles did not last |
$8000 |
|
|
| 4 | Basketball back board fix When good weather returns |
$50 |
![]() |
|
| 5 |
Kitchen
linoleum floor renew |
![]() |
![]() |
|
| 6 | Fortify tunnel from basement to garage | Getting Estimate | The walls show signs of bending inwards |
|
| 7 |
|
Ron Veda - get quote |
||
| 7 | Straighten the uneven garage door floor | getting quote | Water underneath has cracked the cement and
moved it upwards. Car and bikes have to park at an angle and it looks bad. |
|
| 6 |
Remodel down stairs bath to alleviate morning traffic Move sink towards the left Nicer tile floor |
$1000 | ||
|
|
DONE
| 1 | Replace ceiling recessed light baffles 62 Menards |
$620 |
![]() |
|
| 2 | Gardening Amazon Earthwise TC70025 7.5-Inch 2.5-Amp Corded Electric Tiller/Cultivator, Grey |
$86 |
|
|
| 1 | New carpet for stairs and upstairs 95% done Order from Ottumwa Cleaning by Peter did not do a good enough job |
$100 | Stains cannot be removed Time for a new carpet |
|
| 5 |
Tim Plaster & Paint
walls |
$200 $40 |
||
| 3 |
Fix Kalash |
$100 | ||
| 4 | Convert 2nd floor closet to a wash room | Getting estimate | ||
| 5 | Closet space in 2nd floor hall | estimate | ||
|
Washer leak fixed |
To Do
| 9 | Sthapatya-Vedic Rectifications Fence around the house |
$5000 | ||
| 10 | Solar Panels on the roof Eagle Solar CSchuster@EaglePointSolar.com |
$2000 |
Save money on electricity Conserve energy |
|
| 11 | Jacuzzi / Hot Tub in basement |
$3000 | Inside is best to conserve heat Need to make a drain pipe Concrete floor gives good support. Portable SoftSpa could be moved to back yard during summer. |
|
| 12 | Sauna Room | $2500 | Instead of computer room in basement, near shower and furnace for heat conservation |
|
| 13 | Basketball hoop | $100 |
There is a pole but no back board or net |
|
| 14 | Pave Shaddock Street with black top | $2000 | Presently it is a gravel road |
![]() |
| 15 | New cement stairs
|
$2000 | Wooden stairs are a bit crooked | |
| 16 | Extend the 2nd floor on top of the kitchen to make more room for additional bedrooms and bath Tom Prior, Bert and Rick have begun plans and work permit |
$30000 | ||
| 17 | Extend house towards the west with additional bedroom and 2 more baths plus modernize basement bath for a total of 6 bedrooms, 4.5 baths install sauna and jacuzzi This will create 6 bedrooms |
$20000 | ||
| 18 |
Remodel down stairs bath to alleviate morning traffic Replace outdated shower Bert has ordered new white shower |
$1000 | ||
| SUBTOTAL | $104,4000 |
Fairfield Iowa Home Improvement |
| 1 | Improve Steps | getting quote | Steps are cracked and slope inwards |
|
| 2 | Sump pump | $3500 | Lower the water level underneath the concrete basement | |
| 4 | New
Garage Door Opener for north side garage door So ladies can open the door and store their bikes inside the garage in case of rain |
$150 |
|
|
| 5 | New garage doors
Tony McCarty |
$1500 |
260 opener & remote |
|
| 6 | New furniture | $4000 | Living room especially Move old furniture to Iowa condo |
|
| 7 |
New Trampoline |
$800 |
Old one is rusty and not safe Moved to Back Yard |
|
| 8 | New energy efficient furnace Brian and the
crew of |
$8000 | Save money every month, especially in winter when heating bill is $500 It will pay for itself within 2 years |
|
| 9 | Sidewalk fixing Bert Bell fixed it City of Fairfield screwed it up for $647.4 Tony Hammes Property Commmittee Chairman |
$200 $175 |
||
| 17 |
Donation |
$1000 |
To build road barriers to qualify Fairfield as a Rail Road Quiet Zone. No more train horns at night |
|
| 18 |
Driveway in front of garage |
$2000 | Pour new concrete |
Ideas on Hold
May be it wasn't such a good idea after all
| 1 | Buy small dome that used to be part of the Golden Dome for the back yard. | $10000 | Steve Yellin of the MUM Development Office said they would take $10000 for it from anyone who wants this piece of history. |
|
| 2 | Paint the Delta Nu Zeta Van the sorority colors pink and green "The Golden Dome Express" |
$800 | ||
| 3 |
Full sorority chapter status with the national Delta Nu Zeta Headquarters
Establish First Sorority of the Age of Enlightenment |
$2000 |
An annual fee is required for each chapter of Delta Zeta Representative(s) from National Headquarters visit the house to inspect it, and interview members, to determine whether full status should be given. |
|
| 4 | Convert office area in basement to replica of Star Trek bridge | $4000 | New computer and working room |
|
| #4 |
Sears Home
Services www.shs.com |
![]() |